31800 Orange St, Sorrento, FL 32776
Toggle Navigation
Images
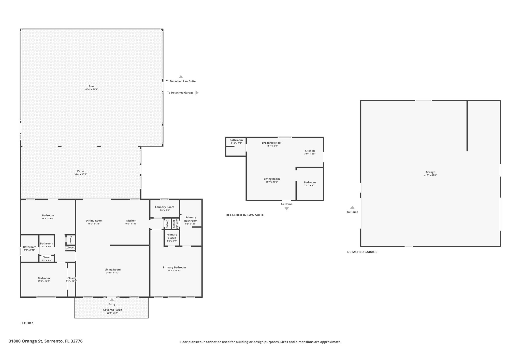
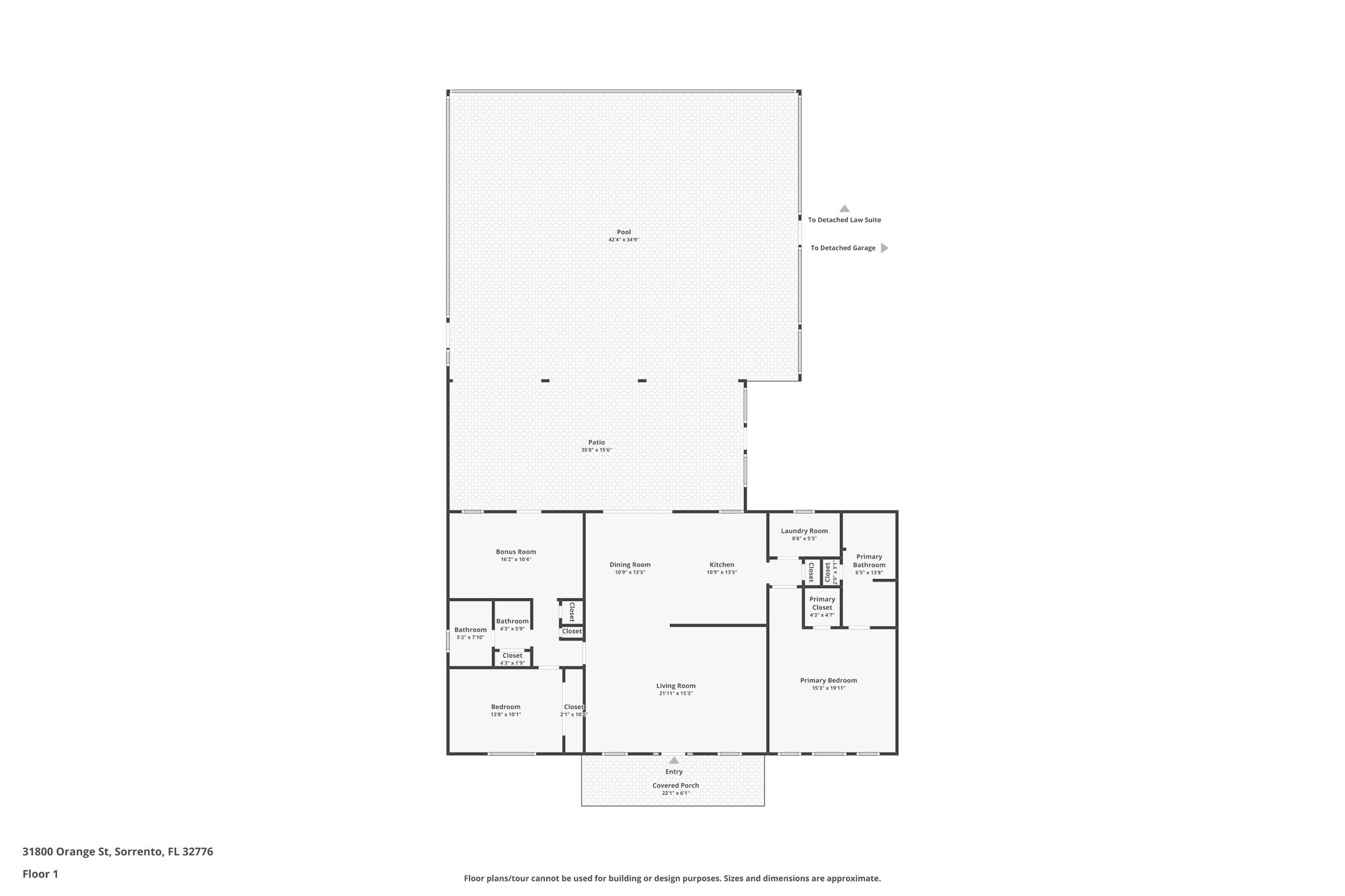
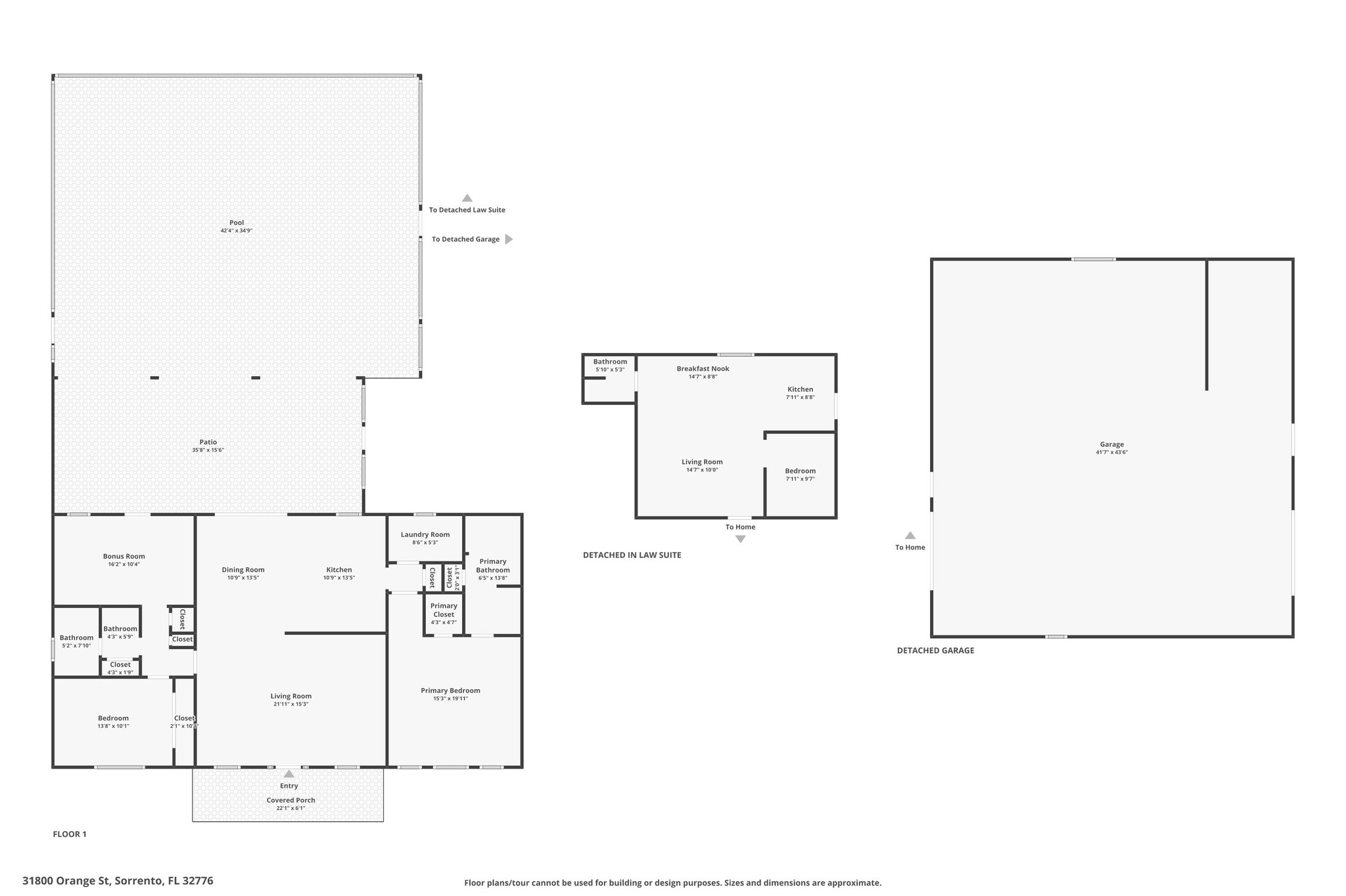
Floor Plans
Map
31800 Orange St
Sorrento, FL 32776
Scroll to Content
Images
Slideshow
Photo Grid
Hide
Previous
Next
Show more
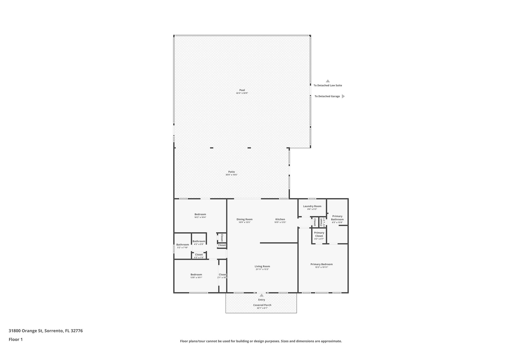
Floor Plans
Slideshow
Photo Grid
Hide
Previous
Next